
一、概述Summary
干式变压器是一种铁芯和绕组不浸于绝缘液体中的变压器。本公司生产的环氧树脂浇注干式变压器产品按IEC国际标准和现行国家标准进行设计,其制造技术,具有低损耗、低局放、低噪音的安全、环保型产品。
The dry type transformer is a transformer with an iron core and winding not immersed in the insulating liquid. The company produced epoxy resin casting dry type transformer designs according to IEC international standards and the current national standards, advanced manufacturing technology. It’s safety and environmentally friendly products with low loss, low power, low noise.
二、标准Standards
IEC 60076-11 GB 1094.11 GB/T 10228
三、型号含义Type Meaning

四、技术参数Technical Specification
10kV级SC(B)型干式变压器技术参数
Technical Specification of SC(B) type dry-type transformer with 10kV
|
额定容量 Rated Power (kV•A) |
电压组合 Voltage Combination |
联结组别 Connection Symbol |
空载损耗 No-load Loss (W) |
负载损耗 load Loss (W) (F)(120℃) |
空载电流No-load Current (%) |
短路阻抗Short- circuit Impedance (%) |
|||||
|
高压HV (kV) |
高压分接范围Tapping Range of HV (%) |
低压LV (kV) |
|||||||||
|
10型 10Type |
11型 11Type |
12型 12Type |
|||||||||
|
30 |
6 6.3 6.6 or 10 10.5 11 |
±2×2.5 or ±5 |
0.4 |
Dyn11 or Yyn0 |
190 |
170 |
150 |
710 |
2.0 |
4.0 |
|
|
50 |
270 |
240 |
215 |
1000 |
2.0 |
||||||
|
80 |
370 |
330 |
295 |
1380 |
1.5 |
||||||
|
100 |
400 |
360 |
320 |
1570 |
1.5 |
||||||
|
125 |
470 |
420 |
375 |
1850 |
1.3 |
||||||
|
160 |
540 |
480 |
430 |
2130 |
1.3 |
||||||
|
200 |
620 |
550 |
495 |
2530 |
1.1 |
||||||
|
250 |
720 |
640 |
575 |
2760 |
1.1 |
||||||
|
315 |
880 |
790 |
705 |
3470 |
1.0 |
||||||
|
400 |
980 |
880 |
785 |
3990 |
1.0 |
||||||
|
500 |
1160 |
1040 |
930 |
4880 |
1.0 |
||||||
|
630 |
1340 |
1200 |
1070 |
5880 |
0.85 |
||||||
|
630 |
1300 |
1170 |
1040 |
5960 |
0.85 |
6.0 |
|||||
|
800 |
1520 |
1360 |
1210 |
6960 |
0.85 |
||||||
|
1000 |
1770 |
1590 |
1410 |
8130 |
0.85 |
||||||
|
1250 |
2090 |
1880 |
1670 |
9690 |
0.85 |
||||||
|
1600 |
2450 |
2200 |
1960 |
11700 |
0.85 |
||||||
|
2000 |
3050 |
2740 |
2440 |
14400 |
0.68 |
||||||
|
2500 |
3600 |
3240 |
2880 |
17100 |
0.68 |
||||||
注:表中数据仅供参考,公司保留数据变动的权力,并接受特殊订货。
Sample data is for reference only. The company reserves the right to change the data, and to accept special orders.
20kV级SC(B)系列干式变压器技术参数
Technical specification of 20kV SC(B) type dry-type transformer
|
额定容量Rated Power (kV•A) |
电压组合 Voltage Combination |
联结组别 Connection Symbol |
空载损耗 No-load Loss (W) |
负载损耗 load Loss (W) (F)(120℃) |
空载电流No-load Current (%) |
短路阻抗 Short- circuit Impedance (%) |
||
|
高压HV (kV) |
高压分接范围Tapping Range of HV (%) |
低压LV (kV) |
||||||
|
50 |
20 22 24 |
±2.5 ±5 |
0.4 |
Dyn11 Yyn0 |
340 |
1230 |
2.0 |
6.0 |
|
100 |
540 |
1990 |
1.8 |
|||||
|
160 |
670 |
2470 |
1.5 |
|||||
|
200 |
±2×2.5 ±5 |
730 |
2940 |
1.5 |
||||
|
250 |
840 |
3420 |
1.3 |
|||||
|
315 |
970 |
4080 |
1.3 |
|||||
|
400 |
1150 |
4840 |
1.1 |
|||||
|
500 |
1350 |
5790 |
1.1 |
|||||
|
630 |
1530 |
6840 |
1.0 |
|||||
|
800 |
1750 |
8260 |
1.0 |
|||||
|
1000 |
2070 |
9780 |
0.85 |
|||||
|
1250 |
2380 |
11500 |
0.85 |
|||||
|
1600 |
2790 |
13800 |
0.85 |
|||||
|
2000 |
3240 |
16300 |
0.7 |
|||||
|
2500 |
3870 |
19300 |
0.7 |
|||||
注:表中数据仅供参考,公司保留数据变动的权力,并接受特殊订货。
Sample data is for reference only. The company reserves the right to change the data, and to accept special orders.
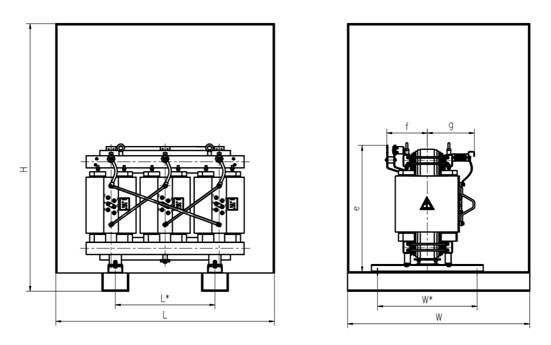
五、外形尺寸图Overall Dimension Drawing
|
10kV级SC(B)型干式变压器外形尺寸图 Overall dimension drawing of 10kV SC(B) type dry-type transformer |
|||||||||
|
额定容量 Rated Power (kVA) |
尺 寸 Overall Dimension (mm) |
||||||||
|
L |
W |
H |
L* |
W* |
e |
f |
g |
||
|
160 |
1500 |
1200 |
2200 |
550 |
660 |
930 |
263 |
330 |
|
|
200 |
1500 |
1200 |
2200 |
550 |
660 |
940 |
268 |
338 |
|
|
250 |
1500 |
1200 |
2200 |
550 |
660 |
950 |
273 |
344 |
|
|
315 |
1500 |
1250 |
2200 |
550 |
660 |
960 |
278 |
350 |
|
|
400 |
1600 |
1300 |
2200 |
550 |
820 |
970 |
285 |
355 |
|
|
500 |
1700 |
1350 |
2200 |
660 |
820 |
985 |
295 |
360 |
|
|
630 |
1700 |
1350 |
2200 |
660 |
820 |
992 |
313 |
377 |
|
|
800 |
1800 |
1400 |
2200 |
820 |
820 |
1039 |
343 |
388 |
|
|
1000 |
1900 |
1400 |
2200 |
820 |
820 |
1109 |
351 |
391 |
|
|
1250 |
1900 |
1500 |
2200 |
820 |
820 |
1177 |
363 |
425 |
|
|
1600 |
2100 |
1700 |
2200 |
820 |
820 |
1535 |
323 |
390 |
|
|
2000 |
2300 |
1700 |
2300 |
1070 |
1070 |
1650 |
340 |
410 |
|
|
2500 |
2300 |
1700 |
2400 |
1070 |
1070 |
1780 |
360 |
430 |
|
注:提供的外形尺寸仅为设计选型时参考,最终尺寸以产品实际尺寸为准。
Note:The overall dimension is only for reference.
